Minorca KC

MINORCA KC je závěsný kondenzační kotel za bezkonkurenční cenu s okamžitou výrobou teplé užitkové vody v nerezové ohřívací komoře. SPLŇUJE EKODESIGN


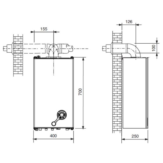
zelena-usporam-zakladni-varianta-lg.pngMINORCA KC: SVT21902

 

  • Ultra kompaktní
  • Rozsah modulace 1:5
  • Uživatelské rozhraní LCD
  • Přídavné relé pro 2 vytápěcí zóny
  • 7-litrová expanzní nádoba

Vlastnosti

Model Druh plynu Kód Tepelný výkon
(kW)
Energetická třída
vytápění prostoru
Energetická třída
ohřev vody
D x V x H
(mm)
Hmotnost
(kg)
MINORCA KC 24 metan KMFC42CR24 20 A A 400x700x250 29,50
 
  • Vestavěný hydraulický agregát včetně 3-cestného ventilu 
  • automatický bypass
  • pojistný ventil
  • tlakový snímačem,
  • vypouštěcí kohout
  • připojení k expanzní nádobě
  • bezpečnostní elektronická deska k ovládání hořáku (elektronické zapalování plamene, ovládání přes ionizaci)
  • LCD displej pro zobrazení CH teploty odtoku vody, teploty teplé vody, nastavení teplé vody a nastavení provozního stavu
  • hořák s celkovým předsměšováním
  • 3-rychlostní čerpadlo včetně odvzdušňovacího zařízení
  • náhradní souprava k dispozici jako volitelná výbava

Technické parametry

TECHNICKÉ VLASTNOSTI KC 24
Typ - B23-C13-C13X-C33-C43-C53-C63-C83
Kategorie plynu - II2H3P
Jmenovitá hodnota (Prated) kW 20
Energetická účinnost sezónního vytápění (ηs) % 93
Jmenovitý tepelný příkon (Qn) kW 20
Jmenovitý tepelný výkon (80–60°C) (Pn) kW 19,5
Jmenovitý tepelný výkon (50-30°C) kW 21,0
Minimální tepelný výkon (50-30°C) kW 5,4
Užitečná účinnost při jmenovitém tepelném příkonu (80–60 °C) % 97,3
Užitečná účinnost při 30 % (30 °C při návratu) % 109,6
Maximální provozní tlak ÚT (min.–max.) bar 0,5-3,0
Teplotní rozsah ÚT °C 20-78
Kapacita expanzní nádoby I 7
Rozsah teplot TV °C 35-57
Třída emisí NOx - 6
Napájecí napětí/frekvence V/Hz 230/50
Maximální příkon W 85
Elektrické krytí IP IPX4D